一、概述
火电厂锅炉给水泵最小流量再循环调节阀,简称再循环阀或最小流量阀,安装在给水泵出口管道的支管上,接入除氧器。给水泵的作用是将除氧器中的水送往锅炉,运行中为防止其产生过热和汽蚀,要求在任何情况下都必须有一个最基本的流量,也就是给水泵的最小流量。当锅炉给水需要量很小或不需要流量时,就会打开再循环阀,使一部分高压给水再回流到除氧器,以保证给水泵的安全运行。
给水泵再循环阀前后的压差,近似于给水泵的进出口压差,该压差为全厂最大,致使该阀阀内极易产生空化汽蚀,工作环境极为恶劣。大型机组例如超临界机组,采用的是直流锅炉,要求再循环阀做到大小可以调节,而不是开-关两位式调节阀。所以,大型机组给水泵再循环阀是火电厂最高端的流体控制组元,对其设计、加工和选材等,都有着极高的要求。我们国家新近建设的大型火电机组,尤其是超临界和超超临界机组,给水泵的再循环阀几乎全部采用进口产品。
国外产品中美国Copes-Vulcan公司的给水泵再循环阀,简称CV阀或C-V阀,以较高的质量和新颖的软密封阀座等赢得了用户的青睐,近些年来在国内不少电厂获得了应用。但长时间运行后,CV阀的检修和维护,也就成了电厂普遍关心的问题。
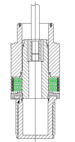
二、美国CV最小流量阀结构原理

CV阀结构特点分析:
1.结构:低进高出、平衡型阀芯结构。
2.节流:迷宫套筒节流。
3.密封:软密封+硬密封结合
三、阀门修复难点
1.原阀结构较为复杂,精密度要求较高。
2.原阀阀座软密封材料,是美国太空研究室提供的技术,国内不易模仿取代。
3.原阀套为迷宫型阀套,如冲刷损坏严重,几乎无法复原,只能更换阀套,更换阀套不仅要求节流效果好,而且对流量控制要求非常严格。
4.原阀阀座软密封面朝上,对水处理要求高,各部件整体间隙配合精度要求高。
四、国内常规修复处理方案
1、完全参考原阀结构方案
阀芯阀座损坏处堆焊车削研磨(或按原尺寸重新加工),迷宫阀笼紊流罩堆焊加工(或用其他迷宫代替),阀塞螺栓弹簧等照原样修复处理,软密封用橡胶制品代替,如图:

优点:周期短,成本低。
缺点:各部件配合精度控制难度大,软密封材料一般不及原材料,而且容易粘连硬性杂质的本质没有改善。
2.整体结构改变方案
将原阀体切割下来改造好以后反向焊接,改变介质流向(将低进高出改成高进低出),用串级结构代替原迷宫结构,阀盖与阀体之间加一段阀体。
优点:流闭型密封,所需关闭力减小。
缺点:将填料及密封环从低压区转到高压区,增加了外漏的风险,阀体上多了一道外漏泄漏点,阀体改造后需重新焊接。
如图:

五、我公司采用的方案
1.阀体流向不变,阀体结构不做改动,无需切割阀体。
2.节流部分,迷宫套改造——采用秦申专利技术
|
|
改造前 | 改造后 |
秦申迷宫套采用多级迷宫节流原理:
迷宫阀套配镶适量的节流小件。流体流过节流小件时,进入迷宫流道,流向不断折绕对冲实现节流降压,介质能量被极大耗损,控制了流速,减弱了密封面的冲刷,防止了闪蒸空化破坏。
节流小件示意图:

节流小件
3.密封部分:软密封+硬密封结合

结构特点:软密封阀座采用耐高温耐磨的复合材料,改变了原阀软密封的方向,原软密封面朝上,改造后软密封面在水平方向,实现零泄漏的同时,又大幅度降低了粘连杂质的机率
4.阀内件硬化处理技术
阀内件硬度达到HRC70度,国际领先,耐冲刷能力强,寿命更长。
选材:440B(9Cr18MoV)
热处理:阀内件整体渗氮,硬度达到HRC70,远高于国内外同类产品司太立堆焊工艺硬度(HRC45)。
技术来源:西安航空工业飞机轴承硬度加工技术,国际领先。
工艺流程:
|
|
5.改造结构图

六、部分业绩
序号 | 电厂名称 | 机组容量 | 原阀品牌 |
1 | 山东邹县发电有限公司 | 2*1000MW | CV |
2 | 皖能铜陵发电有限公司 | 2*1000MW | CV |
3 | 浙能兰溪电厂 | 2*600MW | CV |
4 | 浙能乐清发电公司 | 2*660MW | CV |
5 | 山西兆光发电厂 | 2*600MW 2*300MW | CV、ABB |
6 | 大唐珲春电厂 | 2*300MW; | CV |
7 | 国电深能华蓥山电厂 | 2*300MW | CV |
8 | 青海华电大通发电厂 | 2*300MW | CV |
9 | 中电投四川福溪发电厂 | 2*600MW | CV |
10 | 华能井冈山发电厂 | 2*600MW | |
11 | 江西丰城发电厂 | 2*600MW | |
12 | 国电霍州发电厂 | 2*600MW | CCI |
13 | 江苏扬州二电厂 | 4*600MW | CCI |
14 | 大唐韩城第二发电厂 | 4*600MW | 梅索尼兰 |
15 | 安徽阜阳华润发电公司 | 2*660MW | CCI |
16 | 浙江国华宁海发电厂 | 4*600MW | CV |
17 | 中电国际姚孟发电厂 | 4*600MW | |
18 | 大唐三门峡发电厂 | 2*600MW | CV |
19 | 大唐龙岗发电厂 | 2*600MW | |
20 | 湖南华润鲤鱼江电厂 | 2*600MW | |
21 | 安徽凤台电厂 | 2*600MW | CV |
22 | 上海外高桥电厂 | 2*300MW | CV |
23 | 国电昆明阳宗海发电厂 | 4*300MW | 梅索尼兰 |
24 | 豫电投鸭河口发电厂 | 2*300MW | |
25 | 浙能台州发电厂 | 2*300MW | CV |
26 | 湖南华润鲤鱼江A厂 | 2*300MW | |
27 | 国投曲靖发电厂 | 4*300MW | CCI |
28 | 内蒙京海发电厂 | 2*300MW | |
29 | 大唐户县第二发电厂 | 2*300MW | CV |
30 | 大唐洛阳首阳山发电厂 | 4*300MW | |
31 | 鹤壁同力发电有限公司 | 2*300MW | |
34 | 国电丰城发电有限公司 | 4*300MW | CV |
35 | 湖南省株洲华银火力发电公司 | 2*300MW |
……
西安秦申 刘海涛(18049033445)







